当前位置:首页 > 行政执法公示 > 高阳县自然资源和规划局
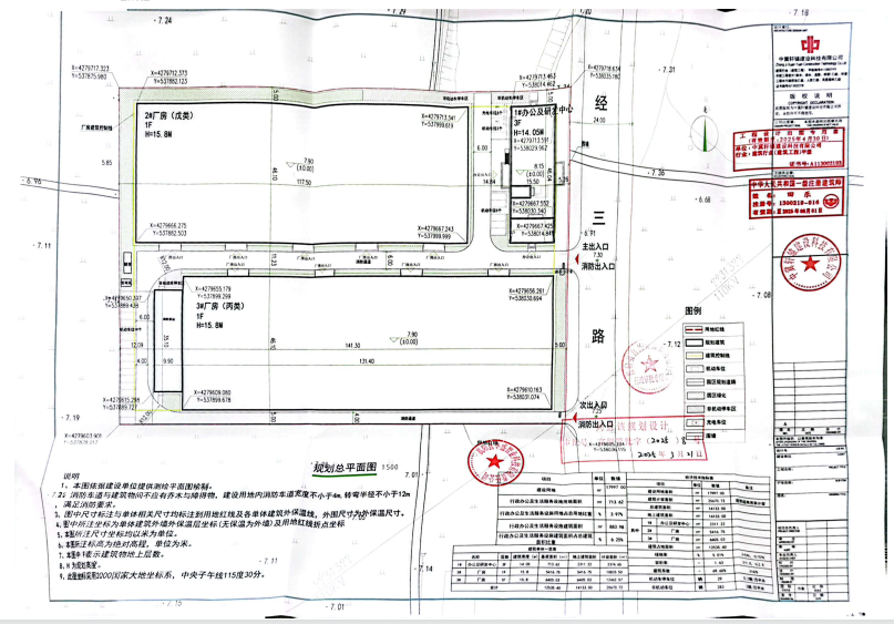
高阳县华盛智业科技有限责任公司年产3000吨新材料农业设施机具配套产品及油液智能化调和分装项目
发布时间:2025/3/24 13:42:24
高阳县华盛智业科技有限责任公司年产3000吨新材料农业设施机具配套产品及油液智能化调和分装项目
[打印本页] [关闭窗口]
 

Copyright © 2007-2018 www.gaoyang.gov.cn All Rights Reserved 版权所有:河北省高阳县人民政府
主办:高阳县人民政府办公室 联系方式 0312-6699502
ICP备案号: 冀ICP备05019657号-1   网站标识码:1306280002  公安机关备案号:13062802000047